康明斯QST30柴油發動機電子控制燃料系統概述
康明斯QST30柴油發電機業務
發電機-驅動控制系統是一種電子控制系統,用于優化康明斯發動機控制和降低排放。

康明斯工業用
康明斯 QST30 發動機燃油系統是一種電子控制系統,它的設計優化了發動機控制并降低了廢氣排放。該系統包括 2 臺直列式燃油噴射泵(每發動機排一臺)和 2 個電子控制模塊 (ECM)。這兩個模塊以主/從布置方式工作;左排模塊設為主模塊,右排設為從模塊。主模塊控制左排噴油泵的供油和正時,還就輔助模塊對右排燃油泵的控制方式發出指令。這些控制和指令都是基于傳感器的輸入。
康明斯 QST30 工業用燃油系統使用博世® RP39 燃油泵。這些泵的執行器控制著正時套筒和供油齒桿。通過 ECM 改變當前對這些執行器的供油,就可使 康明斯 QST30 燃油系統控制發動機的正時和供油計量。ECM 電源現在根據其所接收到的各種傳感器的輸入。
康明斯ECM處理來自傳感器的信息并控制執行器的開啟和關閉。由此控制正時和燃油計量,并進而產生適合發動機最近狀況的正確功率和扭矩。

康明斯QST30 系統部件
康明斯發電機-驅動
康明斯QST30 發動機燃油系統由下列部件組成:
康明斯燃油泵
康明斯燃料切斷閥
康明斯供油壓力傳感器
康明斯進氣歧管壓力傳感器
康明斯機油壓力傳感器
康明斯進氣歧管壓力傳感器
康明斯冷卻液溫度傳感器
康明斯發動機轉速傳感器
康明斯齒條位置傳感器
康明斯冷卻液液位傳感器
康明斯發動機線束
康明斯延長線束
康明斯電子控制模塊(ECM)
康明斯大氣壓力傳感器
康明斯燃油溫度傳感器
康明斯冷卻液壓力傳感器
康明斯機油油位傳感器
康明斯發電機接口線束
康明斯燃油供油泵繼電器
康明斯機油溫度傳感器。
康明斯ECM 處理來自傳感器的信息并控制燃油齒條的運動以控制供油。這一動作控制燃油計量,然后根據最近的發動機狀態產生正確的功率和扭矩。

康明斯發電機-驅動的 ECM 輸入
康明斯供油壓力傳感器 (1)
康明斯發動機轉速傳感器 (2)
康明斯機油液面傳感器 (3)。

康明斯進氣歧管空氣壓力傳感器 (7)
康明斯機油壓力傳感器 (8)
康明斯進氣歧管空氣溫度傳感器 (9)
康明斯冷卻液溫度傳感器 (10)
康明斯機油溫度傳感器 (10)
康明斯冷卻液液面傳感器 (11)
康明斯大氣壓力傳感器 (12)
康明斯冷卻液壓力傳感器 (13)
康明斯燃油溫度傳感器 (14)
康明斯供油壓力傳感器 (15)。

變頻開關(16)
起動開關 (17)
緊急停機開關 (18)
遠程緊急停機開關 (19)
報警復位開關 (20)
怠速/額定開關 (21)
故障診斷模式開關 (22)
調速率調整 (23)
頻率調整 (24)
調速器增益調整 (25)。

康明斯進氣歧管壓力傳感器(1)和進氣歧管空氣溫度傳感器(2)位于進氣歧管內。進氣歧管壓力傳感器監控用于空燃比控制功能的正向歧管壓力。進氣歧管溫度傳感器測量渦輪增壓空氣溫度。進氣歧管空氣溫度傳感器也可用于發動機保護系統。
參見第 E 節,了解部件位置的詳細信息。

康明斯發動機冷卻液溫度傳感器提供用于發動機保護系統的數據。
冷卻液溫度傳感器位于節溫器殼中。
參見第 E 節,了解部件位置的詳細信息。

如果配備冷卻液液位傳感器,該傳感器安裝在散熱器頂部水箱中。它是發動機保護系統所需的一種液位驅動開關。
注: 這是一個可選裝的傳感器,不是所有發動機上都裝有此傳感器。如果沒有使用冷卻液液位傳感器,則安裝一個短接插頭。

康明斯機油壓力傳感器向 ECM 發送信號,用于發動機保護系統。該傳感器位于發動機缸體上。參見第 E 節,了解部件位置的詳細信息。

康明斯發動機轉速傳感器提供了發動機轉速信息。該傳感器位于飛輪殼內。

康明斯發電機-驅動的 ECM 輸出
康明斯ECM 處理所有輸入數據,進而控制以下輸出部件:
康明斯燃油輸油泵總成
康明斯燃料切斷閥
康明斯燃油泵齒條執行器。
注: QST30 發動機有兩種燃油泵/齒條執行器。
測量(發動機轉速、機油壓力、冷卻液溫度)
故障指示燈(警告、停機、超速、冷卻液溫度高、機油壓力低、冷卻液溫度高預警、機油壓力低預警)。

康明斯發電機-驅動的升級
康明斯 QST30 發動機升級后的燃油系統有下列部件組成:
康明斯燃油泵
康明斯燃油切斷閥
康明斯機油壓力傳感器
康明斯冷卻液溫度傳感器
康明斯發動機轉速傳感器
康明斯發動機線束
康明斯發動機線束適配器電纜
康明斯OEM 線束
康明斯電子控制模塊 (ECM)。
康明斯將提供一個組件,將當前的 QST30 發電機-驅動的發動機升級為新發電機-驅動控制系統。
升級組件包括:
發電機驅動控制系統 ECM
適配器線束。
充電機驅動的升級 ECM 輸入
康明斯機油壓力傳感器 (1)
康明斯冷卻液溫度傳感器 (2)
康明斯發動機轉速傳感器 (3)。

變頻開關(16)
起動開關 (17)
緊急停機開關 (18)
遠程緊急停機開關 (19)
報警復位開關 (20)
怠速/額定開關 (21)
故障診斷模式開關 (22)
調速率調整 (23)
頻率調整 (24)
調速器增益調整 (25)。

康明斯發動機轉速傳感器提供了發動機轉速信息。該傳感器位于飛輪殼內。

機油壓力傳感器向 ECM 發送信號,用于發動機保護系統。該傳感器位于發動機缸體上。

康明斯發動機冷卻液溫度傳感器向 ECM 發送信號,用于發動機保護系統。冷卻液溫度傳感器位于節溫器殼體的上部套管中。

發電機-驅動升級 ECM 輸出
康明斯ECM 處理所有輸入數據,然后控制這些輸出部件:
康明斯燃油切斷閥
公共警告電路
公共報警電路
康明斯燃油泵齒條執行器
繼電器驅動器
儀表驅動器。

發電機-驅動
充電機驅動 QST30 系統
充電機驅動發動機上的 QST30 系統包括:
康明斯燃油泵 (2)
康明斯燃油切斷閥 (2)
康明斯機油壓力傳感器
康明斯冷卻液溫度傳感器
康明斯發動機轉速傳感器
康明斯發動機線束
康明斯發動機線束適配器電纜
康明斯原始發動機制造商 (OEM) 線束
康明斯電子控制模塊 (ECM)。

發電機-驅動的 ECM 輸入
康明斯機油壓力傳感器
康明斯冷卻液溫度傳感器
康明斯發動機轉速傳感器。

康明斯機油壓力傳感器向 ECM 發送信號,用于發動機保護系統。傳感器位于發動機缸體的左氣缸排側,在燃油泵后面。

康明斯發動機冷卻液溫度傳感器向 ECM 發送信號,用于發動機保護系統。冷卻液溫度傳感器位于節溫器殼體的上部套管中。

康明斯發動機轉速傳感器提供了發動機轉速信息。該傳感器位于飛輪殼內。

康明斯發電機-驅動的 ECM 輸出
ECM 處理所有輸入數據,然后控制這些輸出部件:
燃油切斷閥
公共警告電路
公共報警電路
燃油泵齒條執行器
繼電器驅動器
儀表驅動器。

康明斯工業用
工業用康明斯發動機上的 QST30 燃油系統包括 2 臺 RP39 噴油泵、噴油器、燃油切斷閥(屬于 EHAB,與 RP39 燃油泵為一體)、2 個執行器、導線線束、以及向 ECM 提供輸入的傳感器。
工業用 ECM 輸入
康明斯ECM 輸入
康明斯節氣門位置傳感器
康明斯進氣歧管壓力傳感器
康明斯進氣歧管溫度傳感器
康明斯機油壓力傳感器
康明斯冷卻液溫度傳感器
康明斯冷卻液液位傳感器
康明斯冷卻液壓力傳感器
康明斯大氣壓力傳感器

針閥運動(1 號噴油器)傳感器(右排和左排)
康明斯發動機轉速/位置傳感器
曲軸箱漏氣氣流傳感器(選裝)
康明斯機油油位傳感器(選裝件)
康明斯機油溫度傳感器(選裝)。

康明斯工業用 ECM 輸出
電子控制模塊 (ECM) 輸出
ECM 處理所有輸入數據,然后控制這些輸出部件:
供油齒桿位置執行器(與 RP39 燃油泵為一體)
套筒定位執行器(與 RP39 燃油泵為一體)
燃油切斷閥

康明斯可編程特性
康明斯工業用
康明斯INSITE™ 服務軟件說明
INSITE ™ 是一個服務軟件,用于 QST30 電子控制系統。使用 INSITE ™ 來執行以下任務:
將用戶專用信息編程輸入 ECM(參數和特性)
幫助對發動機進行故障診斷及排除
跟蹤燃油消耗和負載周期的信息。

ESDN 描述
該電子控制軟件和數據庫網絡 (ESDN) 是基于個人計算機的系統,可以從一個中央地點向康明斯經銷商傳輸用于 QST30 工業用燃油系統 ECM 的新的或升級的標定文件。標定文件是提供發動機性能規格的電子數據。
該標定文件將被加載到 ESDN,然后用 ESDN 裝載該文件到 ECM。
要了解 QST30 工業用燃油系統,請接洽康明斯特約客戶服務代表并參見 INSITE ™(零件號 3162261)。

注意
維護保養監測提醒操作者需要進行常規維護保養停機。必須保存維護保養記錄以便將來參考。
注意
不要超出本手冊中規定的機油排放間隔。康明斯公司不建議超出這些已發布的時間間隔,也不為因超出放油時間間隔而遭受的損壞承擔責任。
參見第 2 節中的機油排放間隔。
維護保養監測是一種可選特性,它提醒操作者:什么時候該更換機油以及同時需要進行的其它維護保養任務。
該功能允許客戶輸入所需的時間間隔。維護保養監測將監測發動機的運轉時間,并且當間隔到達時就會提醒操作者。

提醒操作員
在鑰匙開關處于”ON”(接通)位置后,該維修保養監視功能會通過閃爍發動機防護指示燈(油液指示燈)約 12 秒,來提醒操作員需要更換機油。閃爍序列是 4 次快速閃爍隨后是暫停。該閃爍序列會在該 12 秒的時間內重復四次。每次鑰匙開關接通時都要執行這種閃亮順序,直到維護保養監測復位。
要使該閃爍序列發生,故障診斷開關必須處于”OFF”(關閉)位置。
查看保養監視數據
使用 INSITE ™ 后,可以顯示和打印以下 ECM 的保養數據:
當前間隔的耗油率
上次復位以來的時間。
復位日志
最大閾值由用戶輸入。
時間間隔復位是在保養監視被復位時,保養時間間隔的長度。
間隔提醒百分數
保養設定允許用戶輸入當前間隔的百分數,指示燈會在其時亮起,指示需要更換機油。該參數可以提前提醒用戶需要進行常規維護保養停機。
例如,如果時間被設定到 200 小時而間隔提醒百分數設為 90%,則指示燈會在 180 小時(200 的 90%)時亮起。

在更換機油及濾清器后,使用以下步驟復位保養監視功能。
整個過程必須在 20 秒內完成。
執行此程序時,發動機必須停機。
將鑰匙開關轉到”ON”(接通)位置。
轉動故障診斷開關至”ON”(接通)位置。

油門開到最大,并保持至少 3 秒(4 秒足夠)。
油門關到最小,并保持不超過 3 秒。
油門開到最大,并保持不超過 3 秒。
油門關到最小,并保持不超過 3 秒。
油門關到最小,并保持不超過 3 秒。
油門開到最大,并等待至少 3 秒(4 秒足夠)。
油門開到最小。

轉動故障診斷開關至”OFF”(關閉)位置。
轉動鑰匙關閉,并等待至少 10 秒。
將鑰匙開關轉到”ON”(接通)位置。
如果油液指示燈沒有發生四組四次閃爍,則重復以上復位過程,確保從油門最初動作到最后動作的過程用時不超過 20 秒。

服務軟件INSITE™ 監測模式
INSITE™ 監測模式有助于故障診斷,可以顯示關鍵的 ECM 輸入和輸出。此特性可用于辨別恒定值或異常波動值。
有一塊處于監視模式的屏幕。該屏幕由用戶通過運行監視器設置來進行定義,設置參數最多有 16 個。ECM 輸入顯示系統傳感器和開關正在輸入 ECM 的數據。ECM 輸出的是 ECM 命令向 QST30 工業用燃油系統發出的值。故障診斷期間,監測模式允許監測和使用 ECM 輸入與輸出之間的關系。

發電機-驅動
發電驅動控制系統經過設計具有較強的靈活性,符合各種發電用發動機控制技術規范。

運轉/停機開關
客戶提供的運行/停機輸入提供 ECM 接地。起動時,ECM 的接地允許 ECM 向燃油切斷閥供電。可使用服務軟件監測此開關。

怠速/額定轉速開關
客戶提供的怠速/額定轉速開關允許選擇怠速或額定轉速模式。可使用服務軟件監測此開關。

報警復位開關
客戶提供的開關復位所有停機/警告功能。發動機正在運轉或停機時,警告繼電器驅動器和繼電器觸點可復位。僅當發動機停機時,才能復位停機繼電器驅動器和觸點以及非現行故障代碼。故障引起停機后,重新起動發動機之前,使用服務軟件檢查 ECM 有無故障代碼。

可編程怠速轉速
可使用服務軟件調整怠速轉速。關于此特性的詳細信息,請參考服務軟件手冊。

備用頻率開關
客戶可以自備頻率切換開關,在 50 或 60 Hz 的額定轉速工況間選擇,而無需重新校準電子控制服務軟件。可使用服務軟件監測此開關。
必須在發動機停機之后,才能改變頻率。對于單一額定工作頻率的發動機,頻率切換輸入不起作用。

同步和調速率轉速調控
對于同步轉速運行,需要將調速器的調速率設置為 0。
如果需要,可使用服務軟件調整調速器的調速率。關于此特性的詳細信息,請參考服務軟件手冊。

注意
不要設置調速率超過發動機額定轉速。否則會損壞發動機。
在調速率轉速下運行時,調速器調速率設定值可調范圍為 0 到 10%。
如果需要,可使用服務軟件調整調速器的調速率。關于此特性的詳細信息,請參考服務軟件手冊。

在 60 Hz 滿載條件下運轉的發電機組必須將發動機空載限速調整為:
61.8 Hz [1854 rpm] 用于 3% 的調速率
或
63.0 Hz [1890 rpm] 用于 5% 的調速率

在 50-Hz 全負載條件下運轉的發動機發電機組必須使發動機空載調速轉速調整為:
51.5 Hz [1545 rpm] 用于 3% 的調速率
或
52.5 Hz [1575 rpm] 用于 5% 的調速率
可通過記錄空載和滿載下的轉速并使用調速率公式檢驗發動機—發電機組的調速率。

調速率調節
位于控制面板中的調速率調節電位計允許調整發動機調速器調速率,而無須使用服務軟件。
有關調速率更為詳細的信息,請參閱同步和調速率轉速調節。
頻率調節
位于控制面板中的頻率調節電位計允許調整發動機轉速,而無須使用服務軟件。
這只是在極小范圍內的精細調節。
增益調節
位于控制面板中的增益調節電位計允許調整調速器增益,而無須使用服務軟件。

注意
需要花幾秒鐘初始化每個增益調節(使用電位計或服務軟件)。建議調速器增益設置的增量不要超過 3%。這樣可避免有害的不穩定期延長。
調整調速器增益可使發動機達到最佳性能。可使用服務軟件在 0.05 至 10 之間調節調速器增益。
注: 典型發動機-發電機組的調速器增益設置不需要進行調整,因為在工廠設置的增益值下,1500 和 1800 rpm 發電機組的靜態穩定性和可接受瞬態性能通常都令人滿意。

轉速變化率調節
ECM 提供三種轉速-加速變化率函數,可使用服務軟件來調節此函數。
從起動到額定速度 - 加速時間
從怠速到額定速度 - 加速時間
從額定速度到怠速 - 減速時間
拖動到額定轉速的變化時間表示從拖動到額定轉速的轉速變化率。
怠速到額定轉速的變化時間表示從怠速到額定轉速的轉速變化率。
額定轉速至怠速的減速時間表示從額定轉速到怠速的轉速變化率。
有關特性的詳細情況,請參考服務軟件手冊。
變化時間(單位為秒)取決于怠速和額定轉速的設定值。不是直接選擇變化時間,而是通過選擇變化率編號來選擇期望的變化時間。
Barber-Colman 和 Woodward 轉速偏差輸入
該特性可將 ECM 與 Barber-Colman 或 Woodward 負載均分、自動同步、負載指令等結合。
硬件可以是模擬或數字式。
可使用服務軟件選擇該特性。關于此特性的詳細信息,請參考服務軟件手冊。
發動機內置計時器
可使用服務軟件監測此特性。它指示發動機-發電機已經工作的時間(小時數)。
故障代碼瞬間數據將帶有相應的時間標記。

康明斯儀表標定
儀表標定特性允許發電機 OEM 安裝的儀表的發動機轉速、冷卻液溫度和機油壓力被 ECM 儀表驅動程序標定(0 至 1 mA)。可使用服務軟件執行這些標定。
停機臨界值調整
停機臨界值是 ECM 記錄并報告停機故障條件時的發動機參數值。這些數值可從工廠默認值向下或向上調整(根據機油油位或冷卻液液位)。可使用服務軟件進行這項調整。
警告臨界值調整
警告臨界值是 ECM 記錄并報告警告故障條件時的發動機參數值。這些數值可從工廠默認值向下或向上調整(根據機油油位或冷卻液液位)。可使用服務軟件進行這項調整

超速停機調整
超速停機臨界值是 ECM 切斷至發動機的供油時的發動機轉速值。該臨界值可從工廠默認值向下調整。可使用服務軟件進行這項調整。

康明斯故障診斷代碼
發電機-驅動
發電機-驅動控制系統可顯示和記錄某些可檢測的故障條件。這些故障做為故障代碼顯示,使得故障診斷及排除更加容易。故障代碼保留在 ECM 中。
有兩種形式的診斷代碼:
信息代碼向操作員和電子控制系統(相應的控制器和智能開關裝置)提供已發生事件的信息。
故障代碼向操作者和電子控制系統報告發動機或燃油系統存在故障或可能存在故障。
發電機驅動控制系統 ECM 診斷指示燈
發電機驅動控制系統 ECM 有 5 個 LED 用于診斷:
OS - 超速
LOP - 機油壓力偏低
HET - 發動機溫度偏高
停機 — 發動機保護停機已使用
報警 — 發動機保護報警情況出現。
發電機驅動控制系統繼電器驅動器
發電機-驅動控制系統有 8 個繼電器驅動器用于客戶提供的繼電器:
發動機超速
機油壓力偏低
發動機溫度偏高
發生發動機保護停機
存在發動機保護警告條件
機油壓力偏低預報警
發動機溫度偏高預報警
起動失敗。
故障代碼閃爍
為了閃爍出故障代碼,ECM 必須進入診斷模式。使用診斷模式開關或將兩個單針診斷模式啟動接頭連接在一起,進入診斷模式。這些接頭位于飛輪殼上方,靠近發動機轉速傳感器。ECM 正常工作期間,這兩個接頭斷開(開路)當兩個接頭連接在一起(短路)時,ECM 處于診斷模式。
報警指示燈將閃亮(表示有新故障代碼出現),然后停機指示燈將閃亮故障代碼。
故障代碼 — 服務軟件
服務軟件可用于讀取故障代碼。在個人計算機上安裝服務軟件,用維修線束(零件號 3163156)把個人計算機連接至發動機。參見服務軟件手冊了解使用該工具讀取故障代碼的詳細情況。
故障代碼 — 操作者接口面板
如果使用 RS485 數據通信接口將客戶提供的操作者接口面板與發電機-驅動控制系統結合成一體,就能夠讀取故障代碼,有關更為詳細的信息,請參考設備附帶的說明書。
故障代碼快照數據
當 ECM 中記錄一個診斷故障代碼時,ECM 同時記錄來自所有傳感器和開關的輸入和輸出數據。進行故障診斷及排除時,可查看和使用瞬間數據以了解 ECM 輸入和輸出之間的關系。
清除故障代碼
僅可以清除非現行故障代碼。服務軟件是清除非現行故障代碼的唯一途徑。
清除非現行停機故障代碼時,發動機必須停機。
記錄的所有故障代碼分為現行故障代碼(發動機中故障代碼當前正在起作用)或非現行故障代碼(故障代碼曾經起作用,但當前不起作用)。

康明斯工業用
QST30 燃油系統能夠顯示和記錄某些可檢測的故障情況。這些故障做為故障代碼顯示,使得故障診斷及排除更加容易。故障代碼存儲在電子控制模塊 (ECM) 內,要看到故障代碼可以使用 INSITE ™ 服務軟件、或借助發電機驅動控制面板,因應用而異。發電機驅動布線圖(公告 3666185)上也提供有故障代碼一覽表。
有兩種形式的故障代碼。發動機電子控制燃油系統故障代碼以及發動機保護系統故障代碼。
記錄的所有故障代碼分為現行故障代碼(發動機中當前正在起作用的故障代碼)或非現行故障代碼(故障代碼曾經起作用,但當前不起作用)。
非現行故障代碼只能使用 INSITE ™ 查看。
要讀取故障代碼,ECM 必須加電處于”RUN”(運行)或”DIAGNOSTIC”(診斷)模式。
要進入診斷模式,拆下發動機線束上的診斷接頭短接蓋。
要清除故障代碼,發動機不得運行并且 ECM 必須處于診斷模式。
故障情況會引起”一般警告”或”一般報警”繼電器輸出(30 VDC 下 2A),由 ECM 接通。發電機 OEM 選擇的設備如果使用這些電路,會使操作者意識到存在故障情況。
一般警告繼電器輸出仍然允許發動機運轉。但如果一般警告由故障的傳感器引起,發動機保護會丟失此參數。此情況必須在方便時盡快維修。
”一般報警”繼電器輸出會關閉發動機并且不允許其運行,直到反復轉動” STOP/RUN ”(停止/運行)開關。
這些情況會導致繼電器驅動器(24 VDC 下為 200 mA)由 ECM 接通。發電機 OEM 選擇的設備如果使用這些電路,會使操作者意識到存在故障情況。
一般警告、一般報警和繼電器驅動輸出會保持接通(即使故障代碼不起作用),直到按下”ALARM/RESET”(報警/復位)按鈕。
發動機保護系統中的傳感器超范圍工作時,發動機保護系統將記錄單個故障代碼。
有關故障代碼和糾正步驟的說明,請與康明斯特約維修站聯系。
要退出診斷模式,將短接插頭安裝到診斷接頭上。
記錄的所有故障代碼分為現行故障代碼(故障當前正存在)或非現行故障代碼(故障代碼曾經起作用,但現在不起作用)。
現行故障代碼可利用駕駛室內的報警指示燈或 INSITE ™ 服務軟件讀取。非現行故障只能在 INSITE ™ 上查看。
當鑰匙開關轉到”ON”(接通)時,所有指示燈會點亮 2 秒鐘,以示它們工作正常。
指示燈關閉 2 秒后,黃色警告燈會開始閃爍顯示出所有現行 CENSE ™ 故障代碼(如果存在現行故障代碼),或紅色警告燈會閃爍顯示出所有現行的 QST30 燃油系統故障代碼(如果存在)。
現行故障代碼的編號以下列順序閃亮。黃色或紅色指示燈會閃爍出現行故障代碼的數值。
同一故障代碼的數字間會有 2 秒的停頓,而不同故障代碼間有 3 秒的停頓。
只要車輛鑰匙開關處于接通位置,現行故障代碼就會繼續閃亮。

故障排除和維修圖
對所有故障代碼的說明和修正,是在”故障排除和維修手冊”-”電控系統”-” QST30 系列發動機”-”公告3666184”- 第 TF 節中的故障排除圖中。
電子故障代碼故障診斷樹按數字升序排列。第 TF 節的開始處有索引。
參見 INSITE ™ 用戶手冊,了解更多信息。
故障代碼數據記錄
當故障診斷代碼被記錄入 ECM 中時,某些傳感器的值被快照數據記錄所捕獲。此數據記錄記錄故障發生前后某段時間傳感器的值。有關故障代碼數據記錄特性的詳細信息,請參考《INSITE ™ 用戶手冊》。
可通過下列三種不同的方式得到故障代碼:
閃爍
服務軟件
操作者接口面板。
故障代碼快照數據
當 ECM 記錄到一個故障診斷代碼時,ECM 同時記錄來自所有傳感器和開關的輸入和輸出數據。進行故障診斷及排除時,可查看和利用快照數據,以了解 ECM 輸入和輸出之間的關系。
只能使用 INSITE ™ 服務軟件查看故障代碼快照數據。
當 ECM 中記錄一個診斷故障代碼時,ECM 同時記錄來自所有傳感器和開關的輸入和輸出數據。進行故障診斷及排除時,可查看和使用瞬間數據以了解 ECM 輸入和輸出之間的關系。
客戶可選的傳感器選裝件
該特性允許客戶在需要時可增加電子傳感器組件的特性。可選擇的傳感器包括:
機油油位開關
冷卻液液位開關
中冷器進水口溫度傳感器。
可使用服務軟件啟用這些傳感器。關于如何啟用這些傳感器的詳細信息,請參考服務軟件手冊。
發動機保護系統
發電機-驅動
發電機-驅動控制系統發動機裝備發動機保護系統。該系統監測關鍵的發動機轉速、溫度和壓力,并在超過或低于正常工作范圍時記錄診斷故障代碼。如果存在超出范圍的情況,公共警告電路就會被接通。當超出正常工作范圍的情況越來越嚴重甚至造成發動機停機時,就會接通公共報警電路。
INPOWER™ 維修工具
INPOWER™是一種用于發電機-驅動控制系統的維修工具。INPOWER™可用于:
將用戶專用信息編程輸入 ECM(參數和特性)
幫助對發動機進行故障診斷及排除
改變發動機功率或額定轉速標定。
具體情況請參考 INPOWER™ 手冊。
INPOWER™ 調整模式
調整特性允許對發電機參數進行修整和設置。有幾種調整參數;而且同樣的調整并不是可以用于所有的發電機組。
INPOWER™ 監測模式
INPOWER™監測模式有助于故障診斷,幫助顯示關鍵的 ECM 輸入和輸出。此特性可用于辨別恒定值或異常波動值。
ECM 輸入顯示系統傳感器和開關正在輸入 ECM 的數據。ECM 輸出是 ECM 發送至發電機-驅動控制系統的指令值。故障診斷期間,監測模式允許監測和使用 ECM 輸入與輸出之間的關系。
INPOWER™ PRO 說明
INPOWER ™ PRO 允許用戶從一個中央地點向康明斯經銷商傳輸用于發電機-驅動控制系統 ECM 的新的或升級的標定文件。標定文件是提供發動機性能規格的電子數據。
標定文件將被載入 INPOWER™,然后通過INPOWER™ 將文件載入 ECM。
有關詳細信息,請接洽康明斯客戶服務代表及參考 INPOWER ™ 手冊。
INPOWER™測試模式
檢測功能是一種診斷工具,用于執行 PowerCommand 模塊的內部自檢,以校驗控制系統的輸入和輸出,并測試發動機保護功能。

工業用
QST30 工業用燃油系統發動機裝備有發動機保護系統。該系統監視關鍵性的發動機溫度、液位、開關位置和壓力,并會在出現超過或低于正常工作范圍的情況時,記錄診斷故障。如果存在超范圍情況,則采取措施降低發動機功率。駕駛室內的液位指示燈會向操作員發出警告。當超范圍情況持續惡化,報警指示燈開始閃爍,發動機將會停機。在安全的情況下,駕駛員必須將車輛停靠在路邊,以減少發動機損壞的可能性。
對于某些 OEM,故障指示燈的數量可能減少到兩個。發動機保護和停機指示燈由導線連在一起,是一個紅色燈。警告燈仍為黃色信號燈。
發動機保護系統監視以下傳感器信號:
冷卻液溫度高
冷卻液液位低
冷卻液壓力過低
進氣歧管溫度高
機油壓力低至極低
發動機超速
機油溫度高
燃料壓力
燃料溫度。
要標定相關的轉速和扭矩降額,必須選擇發動機保護啟用。要標定相關的發動機停機功能,必須選擇發動機保護關閉。在 ECM 標定中,可以啟用或禁用發動機保護關閉功能。標定功能因 OEM 而異。如果需要改變發動機保護關閉功能,請聯系設備 OEM。
流程圖
電動燃油輸油泵
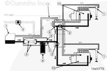
燃油供油泵(5)從燃油箱(7)抽取燃油。供油繼電器 (8) 使燃油供油泵 (5) 工作。燃油通過燃油濾清器和油水分離器(4)循環。在溫度傳感器(6)和壓力傳感器(3)處進行測量。然后燃油流至右排燃油殼體,被分流至左排和右排燃油切斷閥 (2)。如有必要,減壓旁通閥(9)開啟,使燃油流向燃油回流管(11)。然后燃油流向 Bosch®燃油噴油泵 (10) 和噴油器 (1)。

機械式輸油泵
升級
升機型 燃油輸油泵 (4) 從客戶燃油油箱或常用油箱 (1) 中抽出燃油。燃油通過康明斯或客戶預濾器(2)和燃油連接塊(3)循環。然后燃油流入燃油輸油泵(4),在輸油泵中增壓,并通過發動機上的燃油濾清器(5)循環。燃油流過燃油切斷閥 (6),然后流入噴油泵 (7),噴油泵使燃油達到噴油壓力并在適當的時間將燃油輸送到每個噴油器 (9)。
溢流閥 (8) 調節向噴油泵的供油壓力并將多余的燃油輸送回油箱 (1)。燃油從溢流閥 (8) 中流過,并流過一個 T 形,在這里與從噴油器 (9) 中未使用的燃油會合在一起。然后燃油將流過燃油連接塊 (3) 并流回到油箱 (1) 中。